联系电话:
400-966-9098
产品详情
产品概述
雨淋报警阀(沟槽)由雨淋阀、水力警铃、防复位阀、电磁阀和控制腔供水管路、雨淋报警阀开启管路、报警管路、排水管路、压力表等部件组成。在自动喷水灭火系统中,雨淋阀应用广泛,大量应用于开式系统如雨淋系统、水幕系统、水喷雾灭火系统。也可以用于闭式系统,如预作用系统。
雨淋报警阀中有控制腔、供水腔和系统腔。依靠隔膜封住供水腔压力水,控制腔的加压和泄压改变隔膜位置,从而开启或关闭雨淋报警阀。电磁阀动作或打开紧急启动球阀都可以启动报警阀。防复位阀的作用是当控制腔泄压雨淋报警阀开启后,封住控制腔进水通道,防止因控制腔增压雨淋报警阀复位断水,雨淋报警阀需关闭时,打开控制腔进水通道补压,使隔膜复位。防止雨淋报警阀伺应状态时因水压波动开启造成误喷事故。
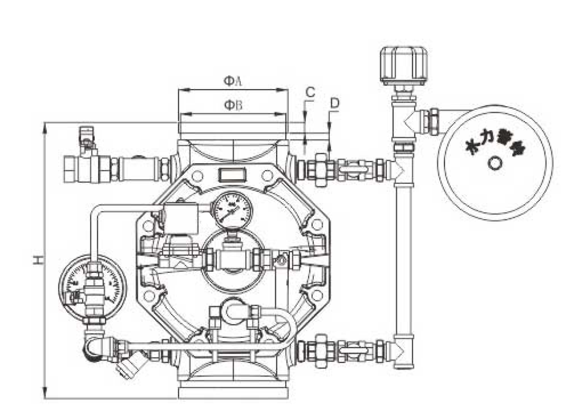
产品尺寸图

主要外形尺寸
型号 | DN | H | A | B | C | D |
ZSFM 100-1.6(G) | 100 | 360 | 114.3 | 110.0 | 15.88 | 9.53 |
ZSFM 150-1.6(G) | 150 | 425 | 165.1 | 160.8 | 15.88 | 9.53 |
ZSFM 200-1.6(G) | 200 | 530 | 219.1 | 214.4 | 19.05 | 11.10 |

:13372267205


