联系电话:
400-966-9098
产品详情
产品概述
雨淋报警阀(法兰)由雨淋阀、水力警铃、防复位阀、电磁阀和控制腔供水管路、雨淋报警阀开启管路、报警管路、排水管路、压力表等部件组成。在自动喷水灭火系统中,雨淋阀应用广泛,大量应用于开式系统如雨淋系统、水幕系统、水喷雾灭火系统。也可以用于闭式系统,如预作用系统。
产品特点
该阀中有控制腔、供水腔和系统腔。依靠隔膜封住供水腔压力水,控制腔的加压和泄压改变隔膜位置,从而开启或关闭雨淋报警阀。电磁阀动作或打开紧急启动球阀都可以启动报警阀。防复位阀的作用是当控制腔泄压雨淋报警阀开启后,封住控制腔进水通道,防止因控制腔增压雨淋报警阀复位断水,雨淋报警阀需关闭时,打开控制腔进水通道补压,使隔膜复位。防止雨淋报警阀伺应状态时因水压波动开启造成误喷事故。
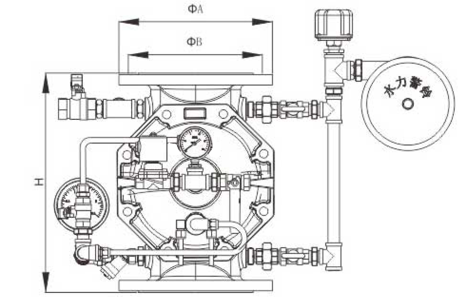
产品尺寸图

主要外形连接尺寸
型号 | DN | H | φA | φB | 螺栓孔 |
ZSFM 65 | 65 | 278 | 160 | 145 | 8-φ18 |
ZSFM 80 | 80 | 344 | 180 | 160 | 8-φ18 |
ZSFM 100 | 100 | 344 | 195 | 180 | 8-φ18 |
ZSFM 150 | 150 | 410 | 280 | 240 | 8-φ23 |
ZSFM 200 | 200 | 520 | 335 | 295 | 12-φ23 |
ZSFM 250 | 250 | 644 | 405 | 355 | 12-φ25 |
ZSFM 300 | 300 | 770 | 460 | 410 | 12-φ25 |



