联系电话:
400-966-9098
产品详情
产品概述
侧装式双偏心半球阀是一种新型球阀产品,驱动方式可选择手动型、电动型及气动型,该产品以其整体刚度好,水损小,防污去污能力强,密封可靠,使用寿命长等优点,能适应高流速、高浓度杂质的水、油、气等介质环境,是传统闸阀、蝶阀及一些特种阀门的理想升级换代产品,广泛适用于引调水项目、泵站、给排水、污水处理等系统作为截断和节流装置使用。
产品特点
1、阀门通过性好,刚度高强, 90°全开时阀芯藏于阀体球室,流道直通,不出现卡、 堵现象;
2、阀门工况适应性强:能应用于高流速、大流量工况,在小开度高压差工况运行 时, 也能保持稳定;
3、开关轻便:启、闭时,阀芯与密封座脱离,无任何接触,扭矩小,转动灵活;
4、密封可靠:启、闭时,阀芯与阀座经偏心的挤切作用,能有效切除密封面上的结垢及粘连物,保持密封;
5、使用寿命长:偏心结构,使球面密封能自动补充磨损,保持阀门长时间的密封性能;
6、结构紧凑,操作方便,装拆方便,便于维修。

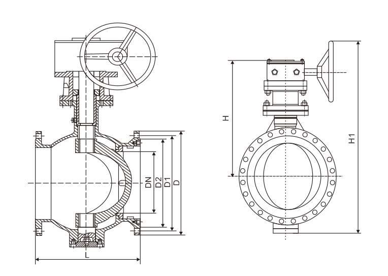
主要外形连接尺寸
| 型号 | Size | DN | L | D | K | d | b | n-Φd | H1 | H2 | ||||
| BPGH-0100B | 4" | 100 | 229 | 220 | 180 | 156 | 22 | 8-18 | 330 | 565 | ||||
| BPGH-0150B | 6" | 150 | 267 | 285 | 240 | 211 | 24 | 8-22 | 390 | 645 | ||||
| BPGH-0200B | 8" | 200 | 292 | 340 | 295 | 266 | 24 | 8-22 | 500 | 710 | ||||
| BPGH-0250B | 10" | 250 | 330 | 395 | 350 | 319 | 26 | 12-22 | 500 | 900 | ||||
| BPGH-0300B | 12" | 300 | 356 | 445 | 400 | 370 | 26 | 12-22 | 520 | 975 | ||||
| BPGH-0350B | 14" | 350 | 430 | 505 | 460 | 429 | 26 | 16-22 | 540 | 1045 | ||||
| BPGH-0400B | 16" | 400 | 530 | 565 | 515 | 480 | 26 | 16-26 | 575 | 1060 | ||||
| BPGH-0450B | 18" | 450 | 580 | 615 | 565 | 530 | 28 | 20-26 | 690 | 1280 | ||||
| BPGH-0500B | 20" | 500 | 630 | 670 | 620 | 582 | 28 | 20-26 | 720 | 1280 | ||||
| BPGH-0600B | 24" | 600 | 800 | 840 | 725 | 682 | 34 | 20-30 | 905 | 1545 | ||||
| BPGH-0700B | 28" | 700 | 900 | 895 | 840 | 794 | 34 | 24-30 | 1105 | 1705 | ||||
| BPGH-0800B | 32" | 800 | 1000 | 1015 | 950 | 901 | 36 | 24-33 | 1180 | 1890 | ||||
| BPGH-0900B | 36" | 900 | 1100 | 1115 | 1050 | 1001 | 38 | 28-33 | 1285 | 2045 | ||||
| BPGH-1000B | 40" | 1000 | 1200 | 1230 | 1160 | 1112 | 38 | 28-36 | 1360 | 2275 | ||||
| BPGH-1200B | 48" | 1200 | 1300 | 1455 | 1380 | 1328 | 44 | 32-39 | 1610 | 2640 | ||||
| BPGH-1400B | 56" | 1400 | 1500 | 1675 | 1590 | 1530 | 48 | 36-42 | 1800 | 2935 | ||||
注:该表未列出规格及参数,请咨询我公司技术部。

:13372267205


