联系电话:
400-966-9098
产品详情
产品概述
隔膜式池底卸泥阀安装在各类沉淀水池的底部,通过换向阀的控制排除池底的泥沙及污物。被广泛用于石油化工、化工、煤气、天然气、液化石油气、暖通行业以及一般工业中。
主要零件材质
| 零件名称 | 材质 |
| 阀体、阀盖 | 铸钢、不锈钢 |
| 膜片 | 丁腈橡胶 |
| 阀瓣 | 碳钢、不锈钢、丁腈橡胶 |
| 阀杆 | 铬不锈钢 |
主要技术参数
| 公称压力 | 1. 0MPa |
| 启闭动作压力 | 0. 15~0.6MPa |
| 隔膜传动介质 | 清水、空气 |
| 适用介质 | 清水、污水 |
| 适用温度 | 0~ 80℃ |

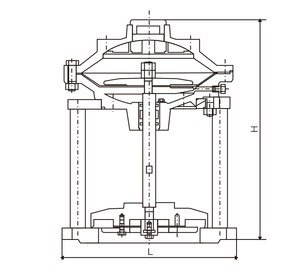
主要外形连接尺寸
| DN | 40 | 50 | 65 | 80 | 100 | 125 | 150 | 200 | 250 | 300 | 350 |
| L | 107 | 115 | 125 | 135 | 146 | 165 | 180 | 215 | 255 | 285 | 325 |
| H | 235 | 234 | 258 | 280 | 307 | 358 | 400 | 490 | 576 | 663 | 750 |

:13372267205


