活塞式水锤吸纳器

产品概况

产品型号:YQ9000-16/25P

 公称压力:PN1.6~2.5MPa

公称通径:DN15~300mm

容气腔压力:(占管道压力百分数)50~70%

适用介质:无杂物的清水、污水 

适用介质温度:0~80℃

法兰标准:GB/T 17241.6、GB/T 9113

试验标准:GB/T 13927、 API 598


产品详情

产品概述

       活塞式水锤吸纳器是一种用于消除管线中因多种原因造成的水锤冲击波,保护管道及设备不受破坏的装置。适用于工矿、企业、高层建筑、电站等各类给排水系统中,利用活塞上腔室中空气的胀缩,使突发的冲击波得到缓冲而缓解了力度,**程度地避免因巨大的水锤冲力造成的设备损坏。该装置结构简单,选材精良,使用寿命长。


工作原理

     活塞式水锤消除器的内部有一密闭的容气腔,下端为一活塞,当冲击波传入水锤消除器时,水击波作用于活塞上,活塞将往容气腔方向运动。活塞运动的行程与容气腔内的气体压力、水击波大小有关,活塞在一定压力的气体和不规则水击双重作用下,做上下运动,形成一个动态的平衡,这样就有效地消除了不规则的水击波震荡。


主要零件材质

零件名称阀体、阀盖活塞密封圈
主要材料不锈钢铸铜、不锈钢丁腈橡胶


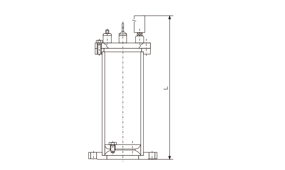
活塞式水锤吸纳器(图1)

主要连接尺寸

公称通径DN

L

公称通径DN

L

管径

mm

1.6MPa

2.5MPa

管径

mm

1.6MPa

2.5MPa

1/2

15

200

220

3

80

510

520

3/4

20

300

320

4

100

575

585

1

25

320

340

5

125

600

600

1 1/4

40

350

380

6

150

645

645

1 1/2

40

350

380

8

200

730

755

2

50

365

385

10

250

820

855

2

65

465

485

12

300

920

955


产品推荐