100X遥控浮球阀

产品概况

产品型号:100X

公称通径:DN50-DN600

公称压力:PN1.0MPa-4.0MPa

适用介质:水、油品

适用温度:0-90℃

制造标准:JB/T10674-2006

结构长度:CJ/T 219-2017

试验标准:GB/T13927-2008

主要材质:铸铁、球墨铸铁、铸钢、不锈钢


产品详情

产品概述

      100X遥控浮球阀是利用控制回路中浮球升降来控制主阀的开启和关闭,达到自动控制设定液位的阀门,是***有多种功能的水力操作式阀门。能有效的控制水塔或水箱液面,适合接通或截断管道中的流体。液位控制准确,水位不受压力波动的干扰,启闭灵活,密封可靠、使用寿命长,维护保养简单。适用于高层建筑中的水箱、水池、水塔的自动供水系统。


产品特点


1、遥控浮球阀由主阀、球阀、浮球阀等组成水力控制系统,调定后,自动控制液面高度。直接利用液面控制,不需要其他装置和能源,保养简便,液面控制准确度高,不受水压影响,密封可靠。

2、遥控浮球阀当管道从进水端给水时,由于球阀、浮球阀是常开的,水用过针阀、控制室、球阀、浮球阀进入水池,由此控制室不形成压力,主阀开启,水塔供水。

3、当水塔的水面上升至设定高度时,浮球阀浮起关闭浮球阀,控制室内水压升高,推动主阀关闭,供水停止。当水面下降时,浮球阀重新开启,控制室水压下降,主阀再次开启继续供水,保持液面的设定高度。


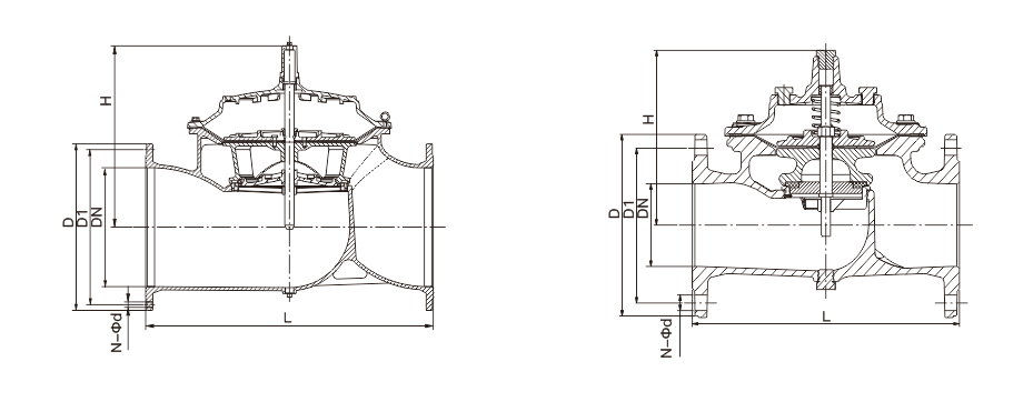
100X遥控浮球阀(图1)

主要外形连接尺寸

DNLHDD1N-Φd
PN10PN16PN25PN40PN10PN16PN25PN40PN10PN16PN25PN40
502411391651651651651251251251254-Φ194-Φ194-Φ194-Φ19
652341591851851851851451451451458-Φ198-Φ198-Φ198-Φ19
802801792002002002001601601601608-Φ198-Φ198-Φ198-Φ19
1003602142202202352351801801901908-Φ198-Φ198-Φ238-Φ23
1254302752502502702702102102202208-Φ198-Φ198-Φ288-Φ28
1504553332852853003002402402502508-Φ238-Φ238-Φ288-Φ28
2005854073403403603752952953103208-Φ2312-Φ2312-Φ2812-Φ31
25079047639540542535035537012-Φ2312-Φ2812-Φ31
30090052644546048540041043012-Φ2312-Φ2816-Φ31
35090058050552055546047049016-Φ2316-Φ2816-Φ34


主要外形连接尺寸

DNLHDD1N-Φd
PN10PN16PN10PN16PN10PN16
40096267056558051552516-Φ2816-Φ31
500107679067071562065020-Φ2820-Φ34
600123293078084072577020-Φ3120-Φ37

注:本表中法兰尺寸按GB/T 17241.6-2008标准,结构长度按CJ/T 219-2017标准。

产品推荐