联系电话:
400-966-9098
产品详情
产品概述
天然气管线专用焊接球阀是一款专用于天然气管道的球阀,主要由阀体、加长杆、放散管等部件组成,天然气全焊接球阀采用筒形体结构制造放散管与加长杆可以根据客户要求定制。该阀有着卓越的品质和稳定的性能是普通球阀无法达到,另外还有着适应能力强,不用维护,使寿命长等优点。广泛的应用在:天然气、煤气等气体管道当中。
适用范围
城市燃气:燃气输出管道、主干线及各支线供应管道等。集中供热:大型供热设备输出管线、主干线、支线。热交换机:管道及各回路启闭。钢铁厂:各种流体管道、废气排放道、煤气和热力供应管道、燃料供应管道等。各种工业设备:各种热处理管道、各种工业煤气和热力管道。
产品特性
1、整体式焊接球阀,不会有外部泄漏现象;
2、采用弹性垫圈及碳纤维增强密封,可以使用几万次;
3、球体的加工采用先进的设备,确保球体的加工精度高;
4、可根据管道的施工及设计的要求,调整阀体的长短和阀杆的高度;
5、天然气全焊接球阀广泛的应用在城市集中供热、天然气输送管线、煤气等气体管道当中。

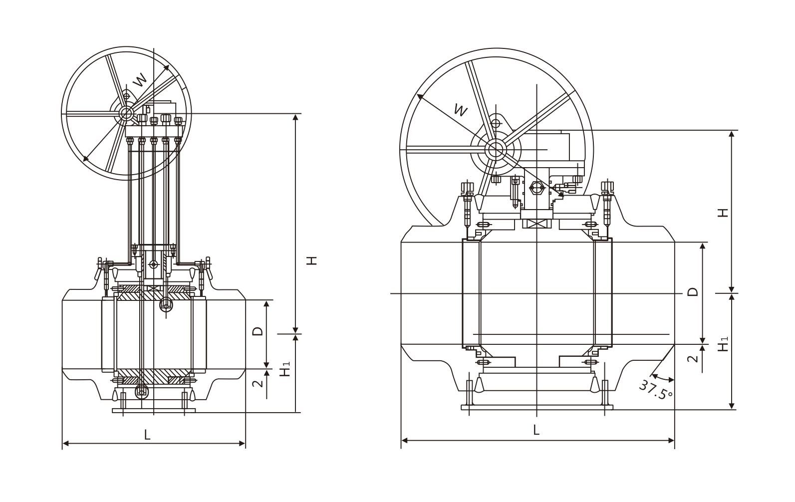
主要外形连接尺寸
| NPS(in) | L | D | H1 | H | W | WT(kg) |
| 2" | 300 | 51 | 100 | 165 | 460 | 40 |
| 3" | 300 | 76 | 110 | 190 | 460 | 70 |
| 4" | 325 | 100 | 130 | 200 | 460 | 95 |
| 6" | 400 | 150 | 176 | 270 | 460 | 180 |
| 8" | 521 | 201 | 218 | 330 | 460 | 280 |
| 10" | 559 | 252 | 270 | 380 | 600 | 440 |
| 12" | 635 | 303 | 300 | 420 | 600 | 570 |
| 14" | 762 | 337 | 340 | 450 | 600 | 800 |
| 16" | 838 | 387 | 395 | 530 | 600 | 1480 |
| 20" | 991 | 489 | 470 | 600 | 600 | 2400 |
| 24" | 1143 | 591 | 580 | 680 | 600 | 4050 |
| 28" | 1346 | 686 | 640 | 760 | 600 | 6460 |
| 32" | 1524 | 781 | 730 | 870 | 600 | 7200 |
| 36" | 1727 | 876 | 980 | 980 | 600 | 8700 |
| 40" | 1840 | 978 | 1010 | 1040 | 600 | 12500 |

:13372267205


