联系电话:
400-966-9098
产品详情
产品概述
加长杆双放散全焊接球阀是应用在天然气管道的专用型产品,是由双放散管加直埋式全焊接球阀组成,放散管与直埋杆根据客户要求制造,双放散管在阀杆左右侧各一个,在管道维修或者维护时通过双放散管可以把多余的介质放出,降低压力,保护管路安全。本公司生产的双放散式全焊接球阀***有:性能稳定、操作简便、外观精美和使用寿命长的特点,其性能是普通球阀无法达到。
适用范围
城市燃气:燃气输出管道、主干线及各支线供应管道等。集中供热:大型供热设备输出管线、主干线、支线。热交换机:管道及各回路启闭。钢铁厂:各种流体管道、废气排放道、煤气和热力供应管道、燃料供应管道等。各种工业设备:各种热处理管道、各种工业煤气和热力管道。
产品特性
1、带放散装置,开关灵活,力矩小;
2、整体焊接而成,不会有外部泄漏等现象;
3、由管材构成,强度足够,价格低廉,外形美观,施工方便;
4、当阀门处于全开或全关位时,可打开排放塞。当打开排放塞时,请准备一个扳手用以防止排放塞突然脱离。可利用关断和排放功能检验阀门的密封完整性。如果阀门的一端排放不能停止即表明阀座可能已泄露。

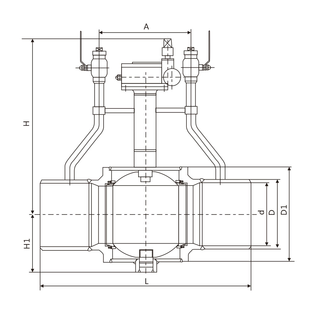
主要外形连接尺寸
| DN(mm) | NPS(in) | d | D | D1 | L | A | H | H1 |
| 100 | 6 | 150 | 168 | 273 | 1000 | 400 | 客户指定 | 177 |
| 200 | 8 | 200 | 219 | 356 | 1100 | 400 | 207 | |
| 250 | 10 | 250 | 273 | 426 | 1100 | 400 | 249 | |
| 300 | 12 | 300 | 325 | 510 | 1230 | 500 | 298 | |
| 350 | 14 | 334 | 356 | 560 | 1350 | 500 | 315 | |
| 400 | 16 | 387 | 406 | 630 | 1480 | 500 | 380 | |
| 500 | 20 | 489 | 508 | 813 | 1720 | 600 | 487 | |
| 600 | 24 | 590 | 610 | 990 | 1800 | 650 | 587 | |
| 700 | 28 | 686 | 711 | 1140 | 1950 | 700 | 660 | |
| 800 | 32 | 781 | 813 | 1320 | 2150 | 800 | 752 | |
| 900 | 36 | 876 | 914 | 1480 | 2400 | 800 | 852 | |
| 1000 | 40 | 978 | 1020 | 1620 | 2600 | 800 | 954 |



