联系电话:
400-966-9098
产品详情
产品概述
不锈钢Y型过滤器用于水、油、气管道和各种设备上不可缺少的一种装置,它主要清除管内中的介质,来保护减压阀、泄压阀、定水位阀和水泵等设备,以达到正常运转。安装时请安在进口处,一般用水滤网采用10~30目/cm2,用气滤网采用40~100目/cm2,用油滤网采用60~200目/cm2。
主要零件材料
| 壳体材质 | 碳钢WCB、黄铜B62 | 不锈钢304、316、316L |
| 滤框滤网材质 | 不锈钢304、316、316L | |
| 密封件材质 | 耐油石棉、丁腈橡胶、聚四氟乙烯 | |
| 防爆级别 | BS5501:IIA、IIB、IIC | |
| 环境温度(℃) | -30~380 | -80~450 |
| 公称压力(MPa) | 0.6~5.0(150Lb~600Lb) | |
| 过滤精度(目/in) | 10~300 | |

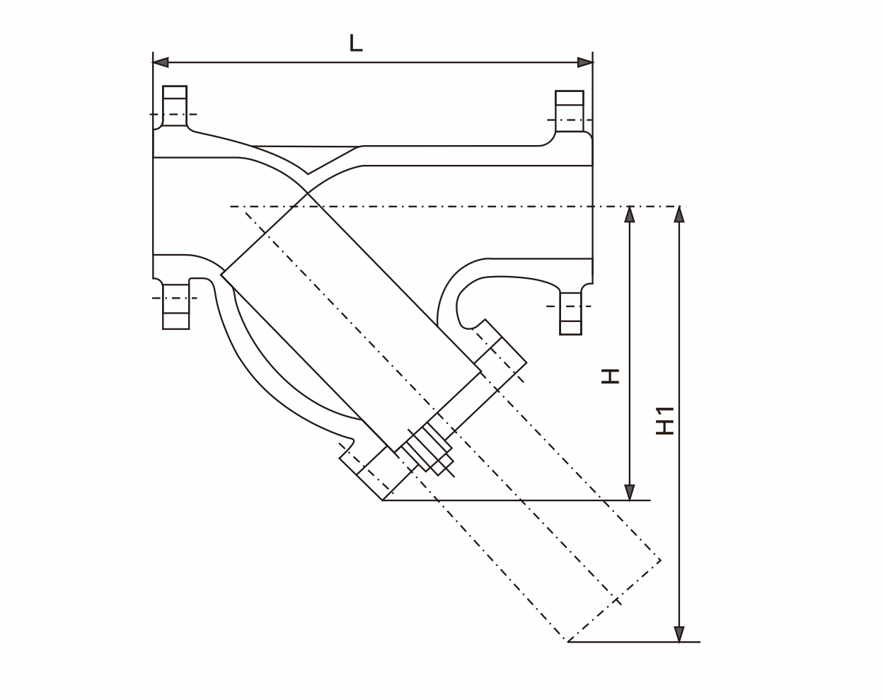
主要外形连接尺寸
| DN | 50 | 65 | 80 | 100 | 125 | 150 | 200 | 250 | 300 | 350 | 400 | 450 | 500 | |
| L | GB | 205 | 215 | 250 | 295 | 315 | 345 | 420 | 530 | 610 | 630 | 720 | 735 | 870 |
| DIN | 230 | 290 | 310 | 350 | 400 | 480 | 600 | 730 | 850 | 980 | 1100 | 1200 | 1250 | |
| H | 155 | 198 | 210 | 250 | 305 | 358 | 450 | 503 | 578 | 598 | 618 | 693 | 765 | |
| H1 | 195 | 270 | 295 | 344 | 422 | 485 | 602 | 710 | 815 | 844 | 872 | 978 | 1080 | |

:13372267205


