联系电话:
400-966-9098
产品详情
产品概述
衬氟法兰球阀是现代化防腐工业输送管道上常见的阀门。球阀的内部流道以及所有与介质接触的部位均采用高工艺衬氟,***有良好的耐腐性能。其工作时球心与密封面无间隙回转,***有良好的密封性。特别适用于浓酸、硫酸、王水以及各种腐蚀性液体的管道上。作为管道的接通和介质的调节。
产品特点
1、其球心通孔和流道呈直通式,使球阀有着很大的流通能力,并且能够有效的减少介质的滞留。
2、球阀的内部流道以及所有与介质接触部位均采用高工艺衬氟,能够适用于各种带有腐蚀性的介质上。
3、可根据不同使用情况来选择执行器的配置,如气动、电动、、开关型,或者带定位器智能调节型。
主要零件材质
| 序号 | 零件名称 | 灰铸铁 | 铸钢 | 不锈耐酸铸钢 | 超低碳不锈耐酸铸钢 | ||
| Z | C | P | R | PL | RL | ||
| 1 | 阀体/阀盖 | HT250 | WCB | CF8 | CF8M | CF3 | CF3M |
| 2 | 球体/阀杆 | WCB | CF8 | CF8M | CF3 | CF3M | |
| 3 | 衬里/阀座 | PCTEF(F3),FEP(F46),PFA(可溶F4),PP,PO | |||||
| 4 | 填料压盖 | WCB | CF8 | CF8M | CF3 | CF3M | |
| 5 | 填料 | PTFE(F4) | PTFE(F4) | PTFE(F4) | |||
| 6 | 支架 | 35 | 1Cr18Ni9Ti | 1Cr18Ni9Ti | |||
| 7 | 螺栓 | 35 | Cr17Ni2 | 1Cr18Ni2 | |||
| 8 | 紧固螺母 | 45 | 0Cr18Ni9 | 0Cr18Ni9 | |||
| 9 | 操作手柄 | WCB | WCB | WCB | |||

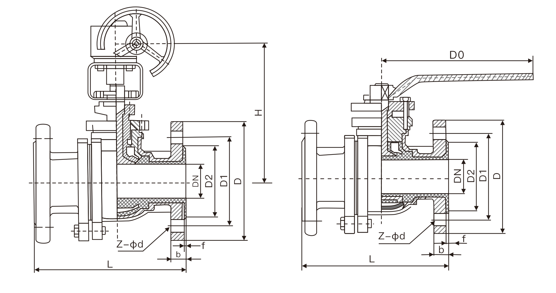
主要外形连接尺寸(PN10)
| DN(mm) | NPS(inch) | L | D | D1 | D2 | f | b | Z- φd | D0 | H | WT(kg) |
| 15 | 1/ 2 | 140 | 95 | 65 | 45 | 2 | 14 | 4-14 | 120 | 80 | 3 |
| 20 | 3 /4 | 140 | 105 | 75 | 55 | 2 | 16 | 4-14 | 140 | 90 | 3.9 |
| 25 | 1 | 150 | 115 | 85 | 65 | 2 | 16 | 4-14 | 160 | 100 | 4.5 |
| 32 | 1-1 /4 | 165 | 135 | 100 | 78 | 2 | 18 | 4-18 | 160 | 110 | 6.5 |
| 40 | 1-1/2 | 180 | 145 | 110 | 85 | 3 | 18 | 4-18 | 200 | 120 | 8 |
| 50 | 2 | 200 | 160 | 125 | 100 | 3 | 20 | 4-18 | 250 | 135 | 11 |
| 65 | 2-1 /2 | 220 | 180 | 145 | 120 | 3 | 20 | 4-18 | 300 | 145 | 15.5 |
| 80 | 3 | 250 | 195 | 160 | 135 | 3 | 22 | 4/8-18 | 350 | 180 | 19 |
| 100 | 4 | 280 | 215 | 180 | 155 | 3 | 22 | 8-18 | 240 | 195 | 26 |
| 125 | 5 | 320 | 245 | 210 | 185 | 3 | 24 | 8-18 | 500 | 210 | 44 |
| 150 | 6 | 360 | 280 | 240 | 210 | 3 | 24 | 8-23 | 200* | 450 | 70 |
| 200 | 8 | 457 | 335 | 295 | 265 | 3 | 26 | 8-23 | 240* | 490 | 110 |
| 250 | 10 | 533 | 390 | 350 | 320 | 3 | 28 | 12-23 | 240* | 550 | 220 |
| 300 | 12 | 610 | 440 | 400 | 368 | 4 | 28 | 12-23 | 320* | 600 | 280 |
| 350 | 14 | 686 | 500 | 460 | 428 | 4 | 30 | 16-23 | 320* | 675 | 410 |



